Weitere Projekte
im ÜberblickProjekt:
Projektbeschreibung zum Download
im Überblick
Projekt:
90-17
Johannes-Dieckmann-Straße 4 (jetzt Alleestraße 4)
14469 Potsdam
Bauart:
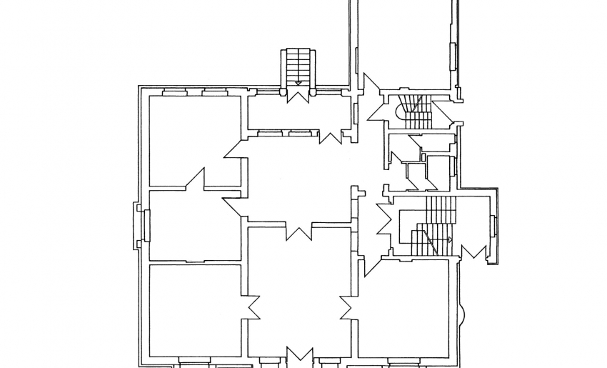
Ausbau, Modernisierung und Instandsetzung Stadtvilla
Entwurf, Ausführungsplanung, Vergabe, Bauleitung
Größe: 900 m² NFL
Fertigstellung: 1992
Bauherr:
Grundstücksgesellschaft Alleestraße 4 GbR
c/o Akanthus, Wangenheimstraße 29, 14193 Berlin
Projektbeschreibung zum Download
In dem unter Denkmalschutz stehenden Gebäude Alleestr. 4 befanden sich bis 1989 die Geschäftsräume des milchwirtschaftlichen Kombinats Potsdam. In Abstimmung mit der Denkmalschutzbehörde Potsdam wurden ergänzende Nutzflächen im KG und DG entwickelt und auf der Grundlage des restauratorischen Gutachtens A. Liebe eine denkmalgerechte Instandsetzung und Modernisierung durchgeführt.